Arq

Edificio Adrogue Adrogue

Edificio Adrogue ||| Adrogue ||| DRM Ariquitectura Edificio Adrogue ||| Adrogue ||| DRM Ariquitectura Edificio Adrogue ||| Adrogue ||| DRM Ariquitectura Edificio Adrogue ||| Adrogue ||| DRM Ariquitectura Edificio Adrogue ||| Adrogue ||| DRM Ariquitectura Edificio Adrogue ||| Adrogue ||| DRM Ariquitectura
Ubicación Adrogue
Año 2020
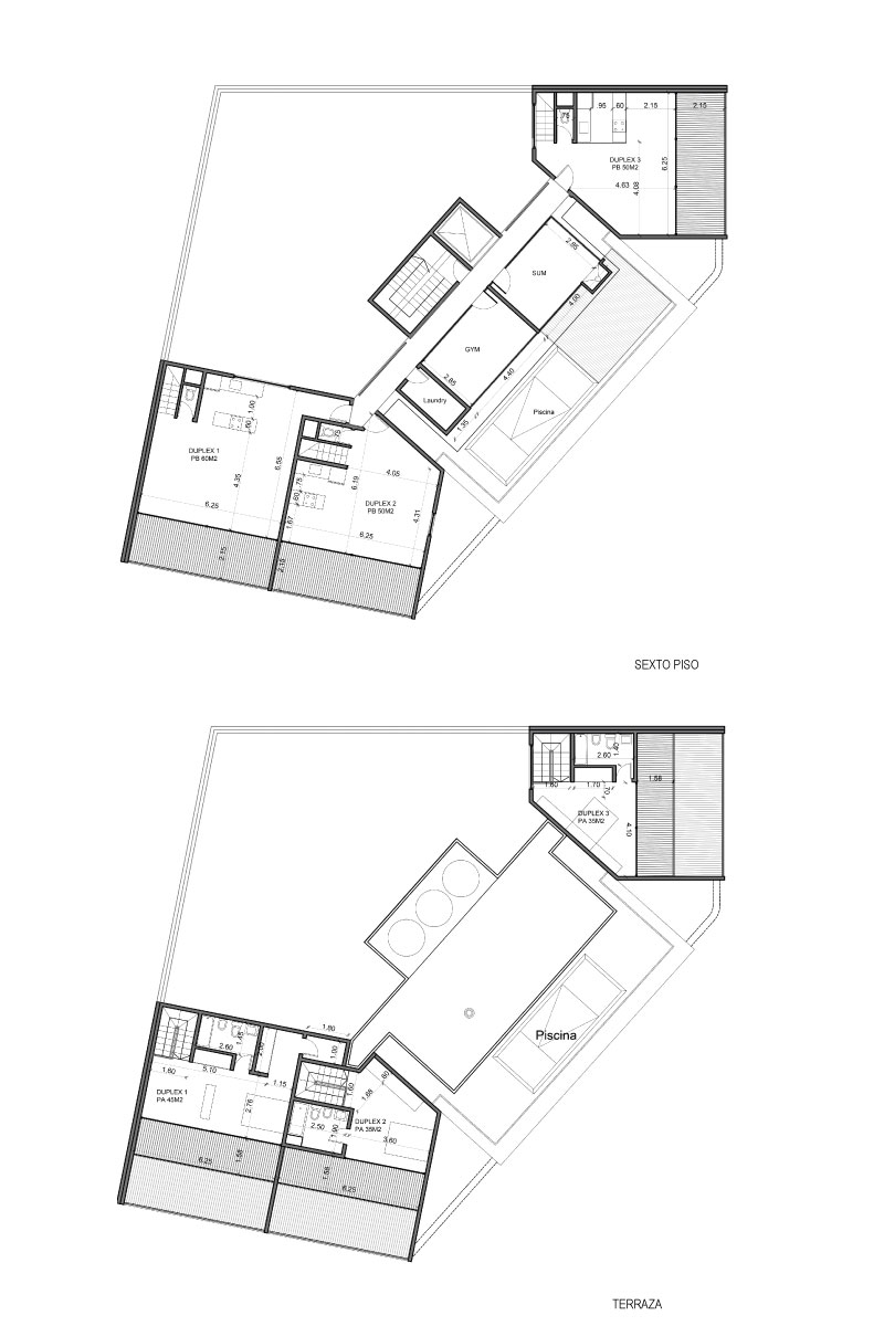
Programa Edificio de Viviendas
Superficie 1775 m2
Equipo de Trabajo DRM- Estudio
Fotografía DRM- Estudio