Ubicación
Remedios de Escalada
Año
2024
Programa
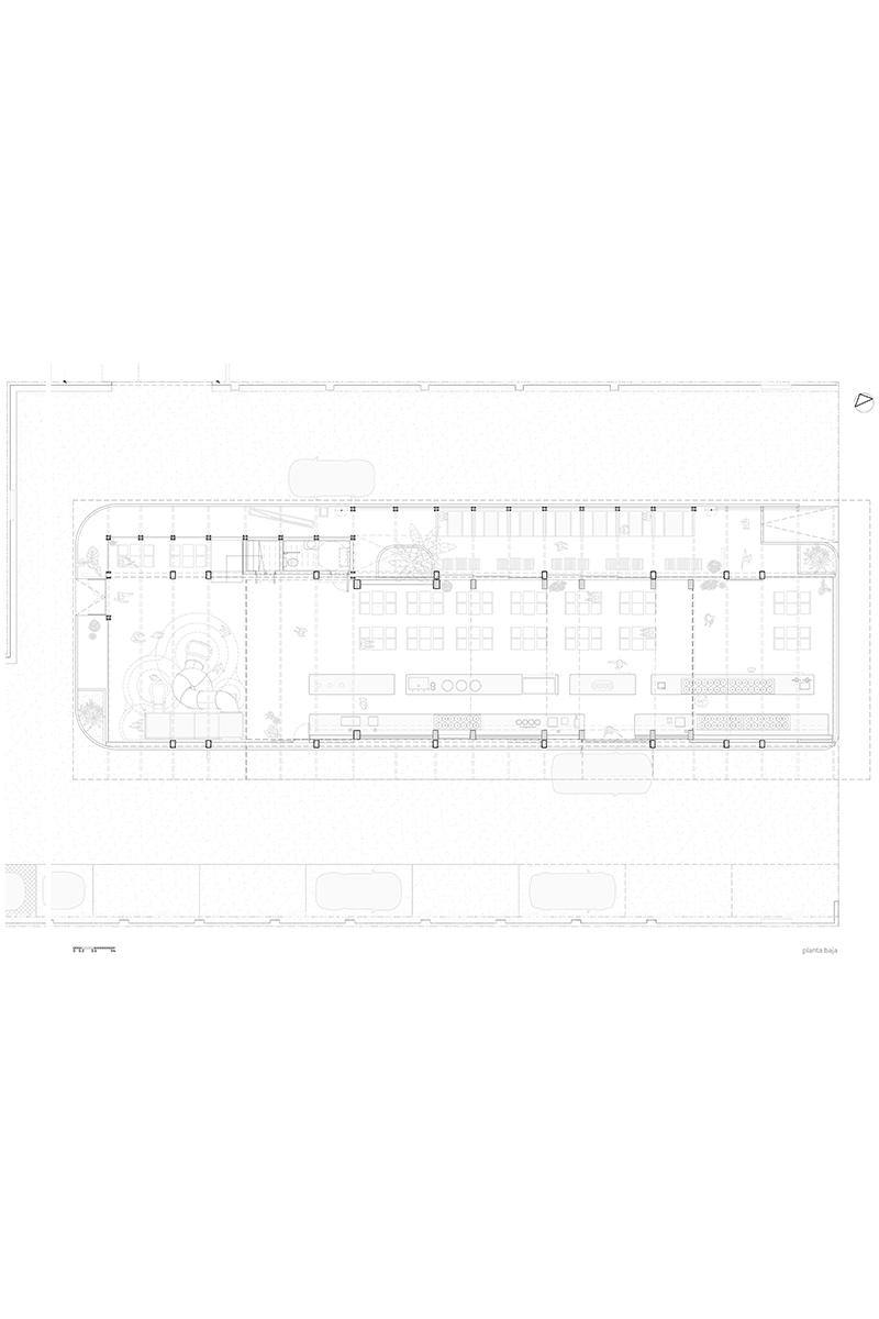
Local Gastronómico-Heladeria
Superficie
510 m2
Equipo de Trabajo
DRM arquitectura
Fotografía
DRM arquitectura
